[엔트로피타임즈 최기훈 기자] 최근 코로나19 바이러스 재확산으로 보건 안전에 대한 경각심이 최고조에 이르고 있는 가운데 건설업계도 입주민들의 안전을 지킬 수 있는 기술 개발에 박차를 가하고 있다.
대림산업은 깨끗하고 안전한 주거환경에 대한 고객의 니즈를 사전에 파악하여 선제적으로 환기시스템 5개년 중장기 로드맵을 계획했고, 안티 바이러스 환기시스템 개발로 결실을 맺었다고 10일 밝혔다.
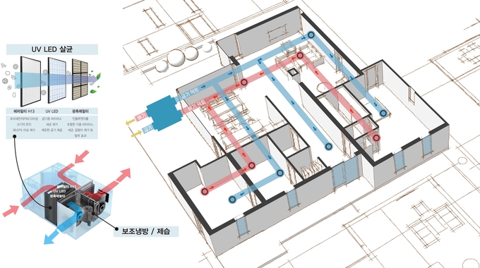
대림산업은 업계 최초로 안티 바이러스 환기시스템을 개발해 특허를 출원했다.
대림이 개발한 이 시스템은 공기청정형 환기시스템에 자외선 발광다이오드(UV LED) 광촉매 모듈을 탑재해 바이러스를 제거하게 된다.
UV LED는 인체와 환경에 미치는 부작용은 적은 대신 살균 효과는 우수하다. 실제로 대림의 안티 바이러스 환기시스템은 한국산업기술시험원(KTL)의 시험결과 부유바이러스 저감률 99.9%, 부유세균 저감률 99.5%, 오존 발생농도 0.009ppm 등의 성능을 확보한 것으로 평가 받았다.
안티 바이러스 환기시스템은 환기부터 초미세먼지와 바이러스 제거까지 한번에 해결할 수 있다. 대림은 지난 2016년 예일대학교 교수의 검증을 거쳐서 업계 최초로 초미세먼지를 제거할 수 있는 ‘공기청정형 환기시스템’을 개발한 바 있다.

이 시스템은 실외기실 천장에 설치된 환기장치에 H13 등급 헤파필터를 설치해 공기청정 기능까지 결합한 것이다. H13 등급 헤파필터는 먼지의 입자 크기가 0.3 ㎛ 이상인 초미세먼지를 99.97% 제거할 수 있다.
외부 미세먼지가 짙은 날에는 실내공기를 순환시키는 “공기청정” 모드로 작동해 24시간 깨끗한 실내공기질을 유지할 수 있다.
환기시스템을 통해 깨끗하게 정화된 공기는 천장에 거미줄처럼 연결된 급배기 덕트를 통해 안방, 거실, 주방 등 집안 전체에 고르게 전달된다. 대림은 여기에 제습 및 냉방 기능까지 더했다. 환기시스템을 작동하기만 하면 실내 온도 28°C 기준으로 10분 내에 사람이 쾌적하게 느끼는 범위의 온도와 습도를 유지해 준다.
특히, 생활 소음 저감에 노력을 기울여 운전시 발생하는 소음이 약 35dB 수준에 불과하다. 이는 일반 가정용 에어컨의 저소음 모드(약 42~45dB) 보다도 낮은 수준이다. 입주민들은 기존의 다른 환기 시스템과 달리 작동 중에도 조용한 환경에서 잠자리에 들 수 있다.
뿐만 아니라 고객이 신경 쓰지 않아도 알아서 세대 내부의 공기질을 쾌적하게 유지해 준다. 대림은 지난해 통합 공기질 관리 센서를 개발했다. 이 센서는 미세먼지와 휘발성 유기화합물, 이산화탄소 농도를 실시간으로 감지한다. 오염원이 발생하면 환기시스템이 자동으로 알아서 운전하는 스마트 시스템이다.
대림산업 주택설비팀 이재욱 팀장은 “환기시스템 하나로 공기청정부터 살균, 냉방 및 제습 기능까지 한꺼번에 구현한 것은 대림이 업계 최초” 라며 “환기시스템 자체가 완벽한 살균 기능을 가질 수 있도록 신소재를 적용하는 방안을 연구 중”이라고 밝혔다.
